pinazo 19

Fase: Construido 2024

Localización:València

Superficie: 100 m²

Equipo: la cooperativeta

Fotografía: Milena Villalba

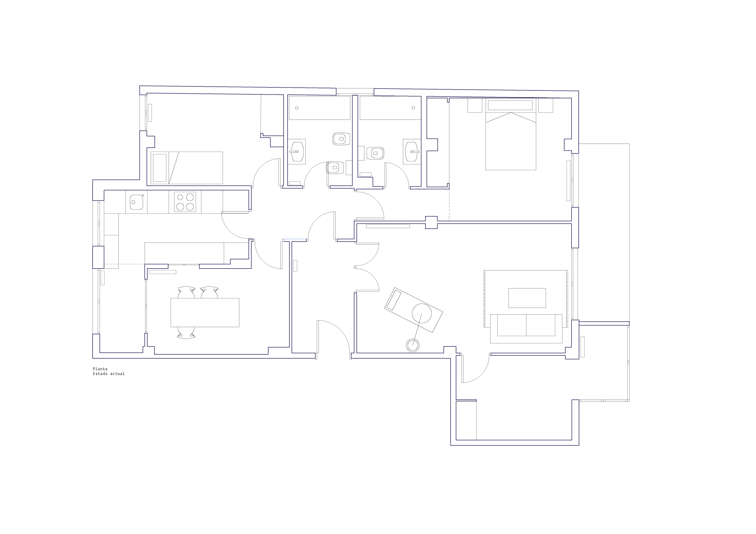
El proyecto parte de una casa llena de puertas y estancias compartimentadas que configuran una vivienda incómoda y oscura, desaprovechando su ventilación cruzada. La distribución, original de los 80, no encaja con las necesidades actuales ni futuras de Vane y Dídac ni de sus 2 gatos. Necesitan que, sin actuar en las habitaciones, la vivienda rompa con esa rigidez y se convierta en un lugar acogedor donde recibir a amigos y que los gatos puedan vigilar desde las alturas a todo el que entre.

Encontrar un sitio donde guardar las bicis se convierte en el reto y el eje estructurador del proyecto. Su dimensión y ubicación permite organizar la vivienda y sus usos, acotando el espacio sin interrumpirlo. Mediante añadidos en forma de estantes o asiento, se construye un mueble sobre el que se genera toda la vida de la casa: marca y define la entrada, hace a la vez de recibidor, baúl y banco donde quitarse los zapatos; completa el almacenaje de la cocina, genera cierta privacidad y, además, esconde las bicis. Este dispositivo se convierte en el mueble que articula el espacio y complementa los usos a medida que lo rodeas. 

El hecho de no llevarlo hasta el techo, a excepción de la bajante existente, enfatiza la idea de conexión visual y espacial entre las estancias.

El falso techo, con sus formas curvas, dibuja en la vivienda diferentes alturas que nos guían en la relación espacio-uso. De la misma forma, las dos materialidades del suelo se relacionan con la forma del mueble, rompiendo la entrada y enfatizando la conexión cocina-entrada-salón. Así, suelo y techo crean un juego geométrico que contrae o expande el espacio, configurándolo.

Se establece un zócalo de 48cm de altura como elemento unificador que facilita la lectura espacial. Este zócalo cambia de materialidad según la ubicación. En la cocina, el mismo despiece del suelo se eleva rodeando el mueble y creando la base del asiento. En la parte de almacenaje, el mueble bajo de madera de roble continúa a lo largo de las puertas altas hasta llegar a la zona más vinculada a lavandería, donde se corta. Las puertas que separan el salón-comedor, de acero, también cuentan con esa parte ciega, creando así una envolvente continua a la misma altura.

La cocina se convierte en el centro de operaciones y encuentro social. Una isla central de trabajo y ocio, pegada al mueble de obra, configura 2 ambientes a cada lado. Por un lado, la cocina en sí misma, lisa, cubre todas las necesidades culinarias de Vane. El lado enfrentado, más abierto y conectado al comedor, es una banda de almacenaje con una modulación marcada por un tirador de madera que enfatiza el ritmo y continúa hasta la entrada, cosiendo el espacio. Esta modulación se continúa en las puertas del salón, unificando el espacio con el ritmo y con el encuentro de materiales y visuales en el centro de la puerta.

Como guiño formal entre los diferentes elementos del proyecto, un espejo sobre el asiento de obra dibuja un círculo completo en el reflejo, de la misma forma que los tiradores de la puerta lo completan al cerrarse. Estas puertas pueden desplegarse en su totalidad, creando un único espacio inundado por la luz y los reflejos.