No patio
no party

Fase: Concurso 2020 IVABI. Seleccionadas
 
Localización: Mallorca

Equipo:Nacho Mari, Marta Pérez, Ana Vargas (la cooperativeta)

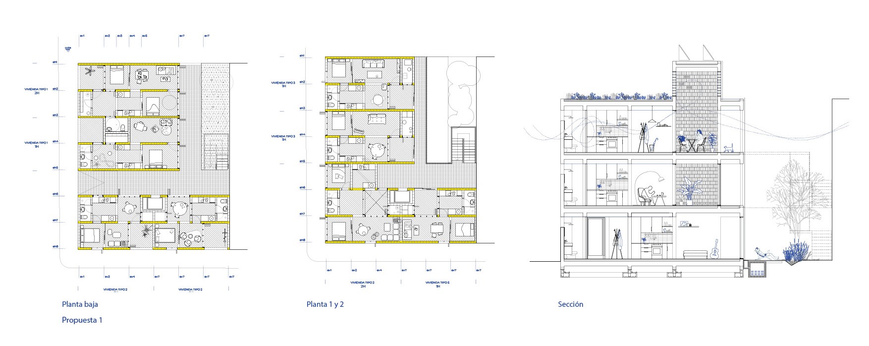
No patio No Party es la decisión de un modelo de habitar en la que el patio es la unidad base. Los dos solares planteados por el concurso, de morfologías totalmente diferentes, se resuelven con el mismo sistema de patios intermedios y módulos configurables a su alrededor.

En el conjunto de las dos propuestas, las viviendas de planta baja se relacionan con la calle a través del patio buscando la privacidad e intimidad. En el resto de plantas, la definición del corredor como eje de comunicación y de relación permite que se conciba como un espacio semi-público y usable.
Este entramado habitable exterior favorece las relaciones entre los habitantes y sirve de control térmico de los espacios exteriores comunes: cubierta, corredor y jardines de planta baja.

La vivienda y su variación se consiguen mediante la adición de una única unidad espacio-funcional, sin jerarquías ni usos prestablecidos. El sistema de orden que permite toda esta variedad se produce a través del desplazamiento de medio módulo, evitando así espacios residuales y fomentando la ventilación cruzada, la flexibilidad de usos y dando cabida a los diferentes modos de habitar.

El espacio público interior se organiza como un mínimo de 3 módulos y un máximo de 5. Dependiendo de su configuración, la relación espacial cambia y con ella el tipo de vivienda. La flexibilidad “estática” se consigue a través de los cambios de uso dentro de esas unidades y del uso alterno o complementario de las mismas, más que con elementos móviles.

Siendo conscientes de las demandas sociales y los nuevos modelos de unidad familiar, se define una pieza satélite, denominada “habitación nómada”. Se trata de la unidad mínima formada por 3 módulos: dos espacio-funcionales, un patio y una pieza de baño. Esta se configura de tal forma que puede usarse independiente al resto, acorde a las necesidades de tiempo, espacio y uso de sus habitantes.

Otro punto importante del proyecto es su conciencia con el medio ambiente. Se plantean sistemas de recogida y tratamiento de agua para reutilizar, reducción del consumo, materiales de proximidad y de bajo impacto, empleo de energía limpia e incluso un “paisaje verde” que mitiga las temperaturas y favorece la flora y fauna del lugar. El sistema constructivo es un entramado de termoarcilla totalmente modulado de piezas enteras y medias, por lo que no existe pérdida de material, reduciendo considerablemente los residuos generados, así como los tiempos de ejecución de la obra.