casal jove
Bèlgida

Fase: Proyecto 2022. En proceso 

Localización: Bèlgida, Valencia

Superficie: 263.60 m

Equipo : la cooperativeta + portal6

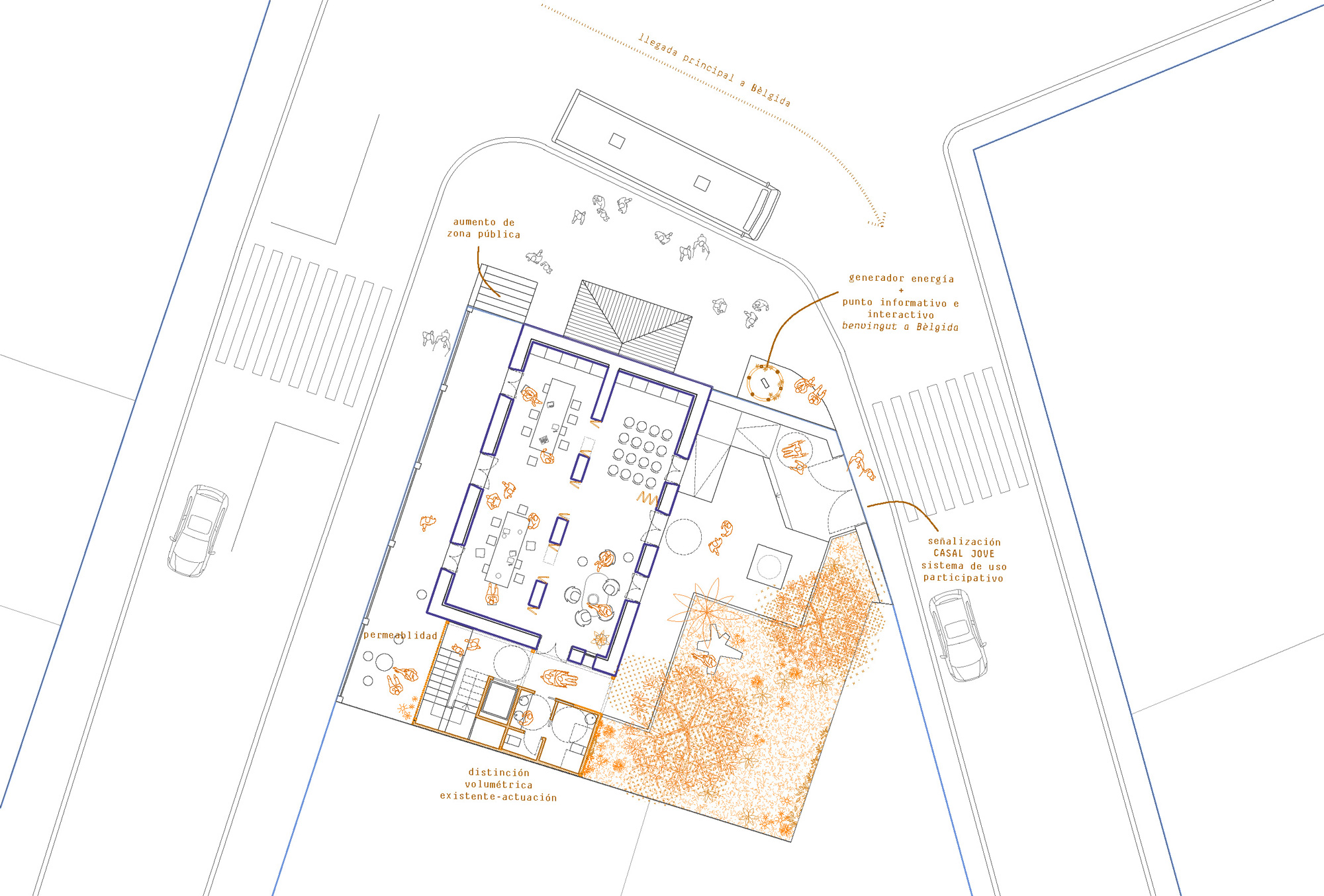
Bèlgida, un pequeño pueblo de interior de Valencia, cuenta con una de las construcciones del siglo XVIII destinadas al mantenimiento y conservación de la carretera, la casilla de peón caminero. Un elemento patrimonial idóneo para revitalizar y potenciar la vida del municipio.

Dentro del marco de las ayudas PIREP2022 (Programa de Impulso a la Rehabilitación de Edificios Públicos), el proyecto persigue la rehabilitación del edificio para convertirse en el Casal Jove de Bèlgida. Un nuevo punto de encuentro de generaciones que reactivará su entorno desde los principios de sostenibilidad, inclusión y calidad arquitectónica.

Conscientes de la oportunidad y de su ubicación estratégica en el acceso, la propuesta consolida la arquitectura existente y mantiene su protagonismo respecto a nuestra actuación mediante un juego de materialidad y volumen másico-ligero.

¿Tienes ganas de verlo? Estamos en ello, ¡pronto podremos contarte más!