casa PLOM

Fase: Construido 2023

Localización: Cabanyal, València

Superficie: 173.39 m²

Equipo: la cooperativeta

Fotografía: Milena Villalba

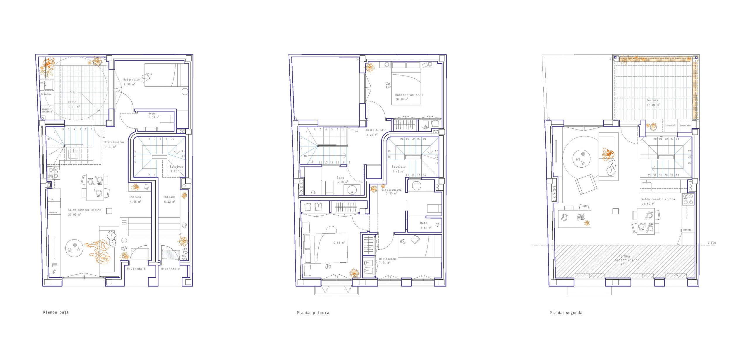
Casa PLOM es el resultado de la segregación en dos de una vivienda unifamiliar entre medianeras propia del barrio del Cabanyal: dos plantas + altillo, un pequeño patio al fondo y un ancho de apenas 7m. Montse y Sara son dos hermanas que, aunque están encantadas de verse todos los días, tienen ganas de ser algo más independientes.

Manteniendo el volumen actual y sus huecos, la propuesta vacía el interior pero conserva las historias de la familia. Nuestro principal objetivo: no perder espacio. Cada centímetro era un mundo. Los elementos fijos se compactaron y redujeron para permitir la máxima flexibilidad espacial en el resto de estancias.

El resultado son dos casas de apenas 60m², por lo que trabajar la pequeña escala y los detalles se vuelve fundamental en el proceso. A través del diseño, se busca aprovechar al máximo el espacio e incorporar los rincones residuales: estanterías integradas, hornacinas, etc. La nueva medianera entre las viviendas juega con una geometría curva para crear una sensación de mayor amplitud y dar un carácter distintivo a cada uno de los espacios que divide.

Una de las principales dificultades del proyecto fue ubicar dos escaleras en la parcela de tal forma que no rompiesen el espacio interior, siendo elementos ligeros y que dejen pasar la luz. En el caso de la vivienda de Sara, una chapa plegada se levanta sobre la cocina y permite que esta se relacione directamente con el patio. En la de Montse, la escalera se trató como un lucernario hasta el acceso, reduciendo a la mínima expresión la zanca y los peldaños. Para asegurar su buen comportamiento estructural, la zanca interior se va entrecruzando y anclando a la exterior. La sensación de ligereza se consigue dejando oculta esa zanca bajo el peldaño intermedio, combinando así diseño y funcionalidad. Esta se refuerza con el contraste generado entre unos primeros peldaños de obra y el arranque de la escalera metálica suspendida.

En cuanto a la materialidad, se han elegido tonos neutros para que el protagonista del espacio sea la luz. Son otros elementos, como la disposición del pavimento en la entrada y los alicatados de pequeño formato de la cocina y terraza, los aportan mayor dinamismo. En los baños, un vidrio traslucido da un toque más divertido al crear una conexión visual con las escaleras y su movimiento. En la cocina, una estantería suspendida y muy permeable complementa el almacenaje sin perder la relación con el exterior. Esta, anclada al forjado mediante una subestructura oculta en el falso techo, está formada por tres U metálicas arriostradas entre sí y sobre las que apoyan las baldas de madera.

En definitiva, se ha trabajado con un mismo contenedor y un mismo lenguaje, pero dando respuesta las diferentes vidas y necesidades de dos hermanas. Juntas pero no revueltas ☺